BREEDTEMAAT 5,7 meter
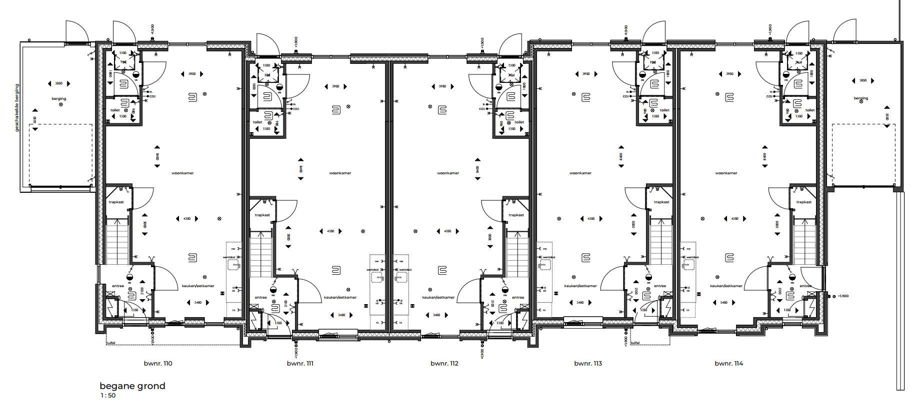
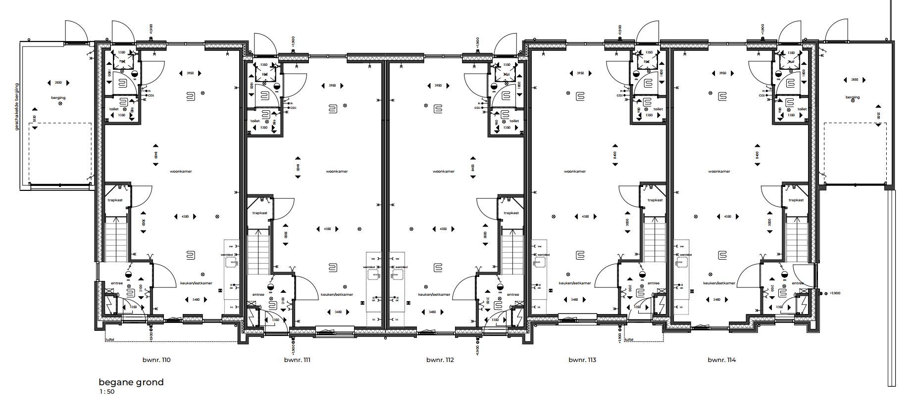
Tussenwoning
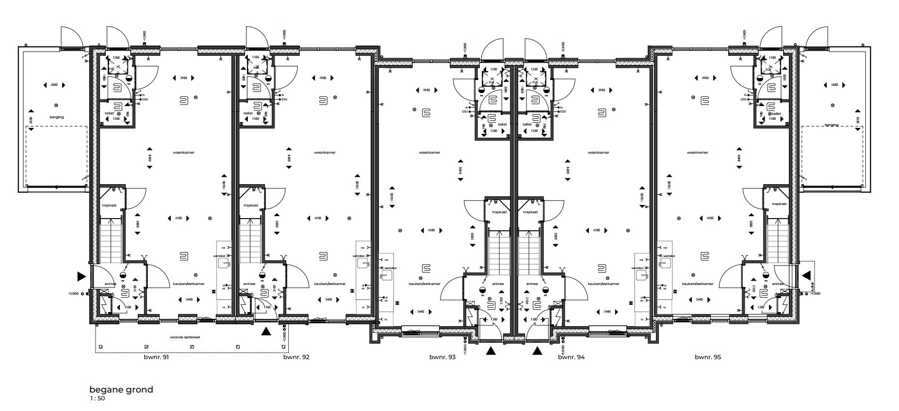
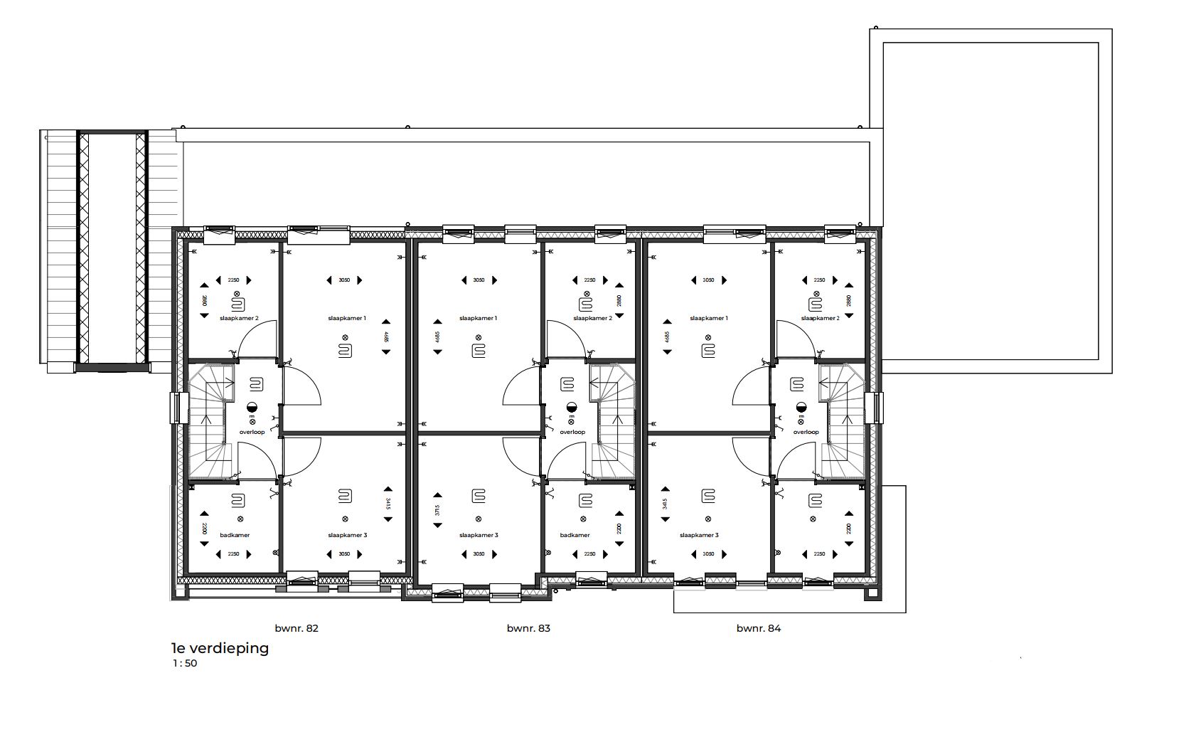
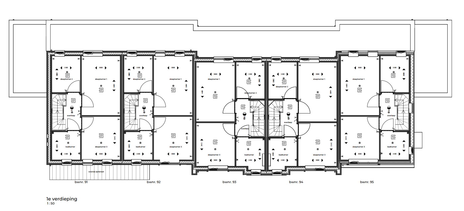
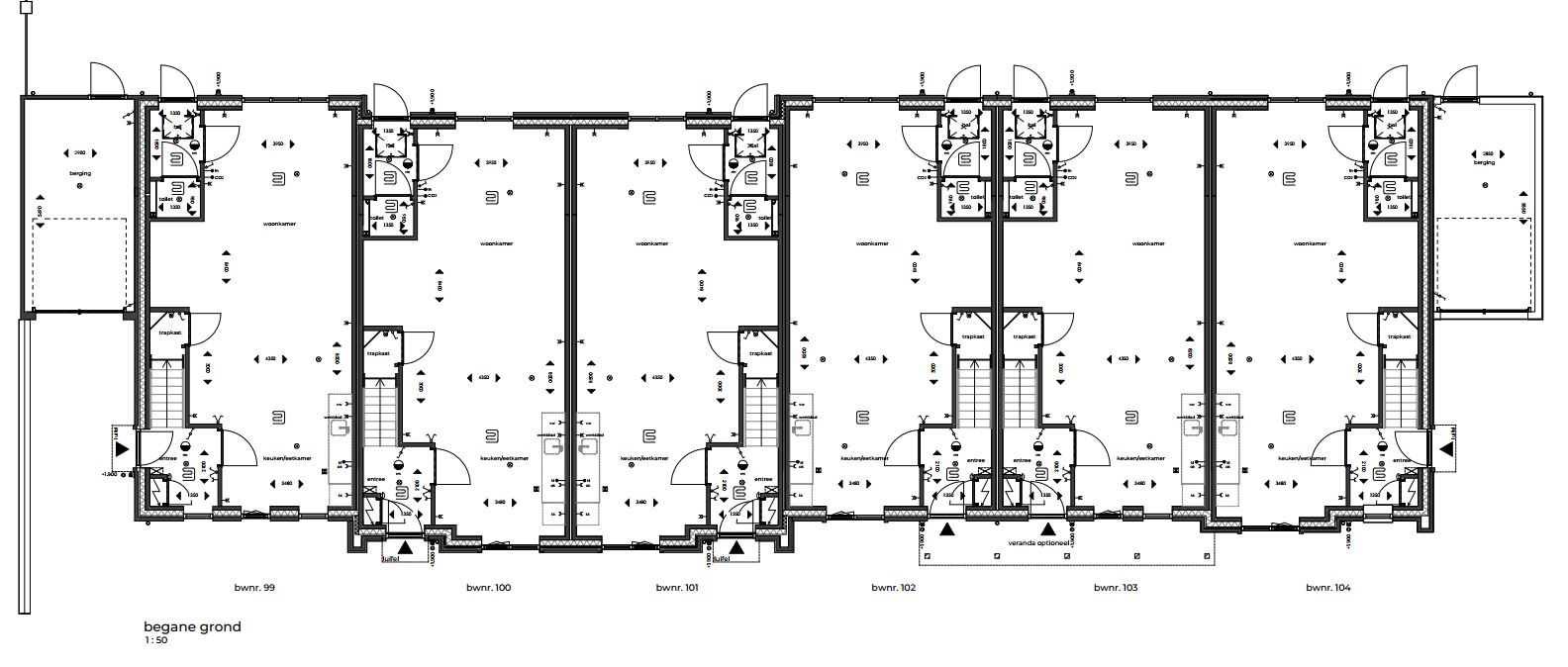
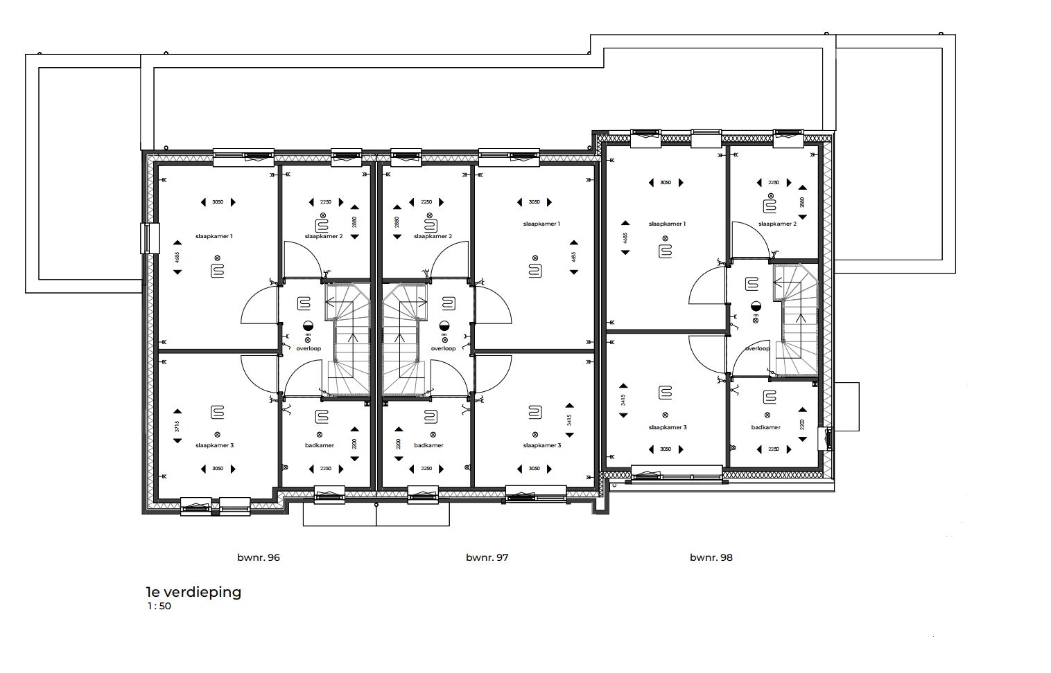
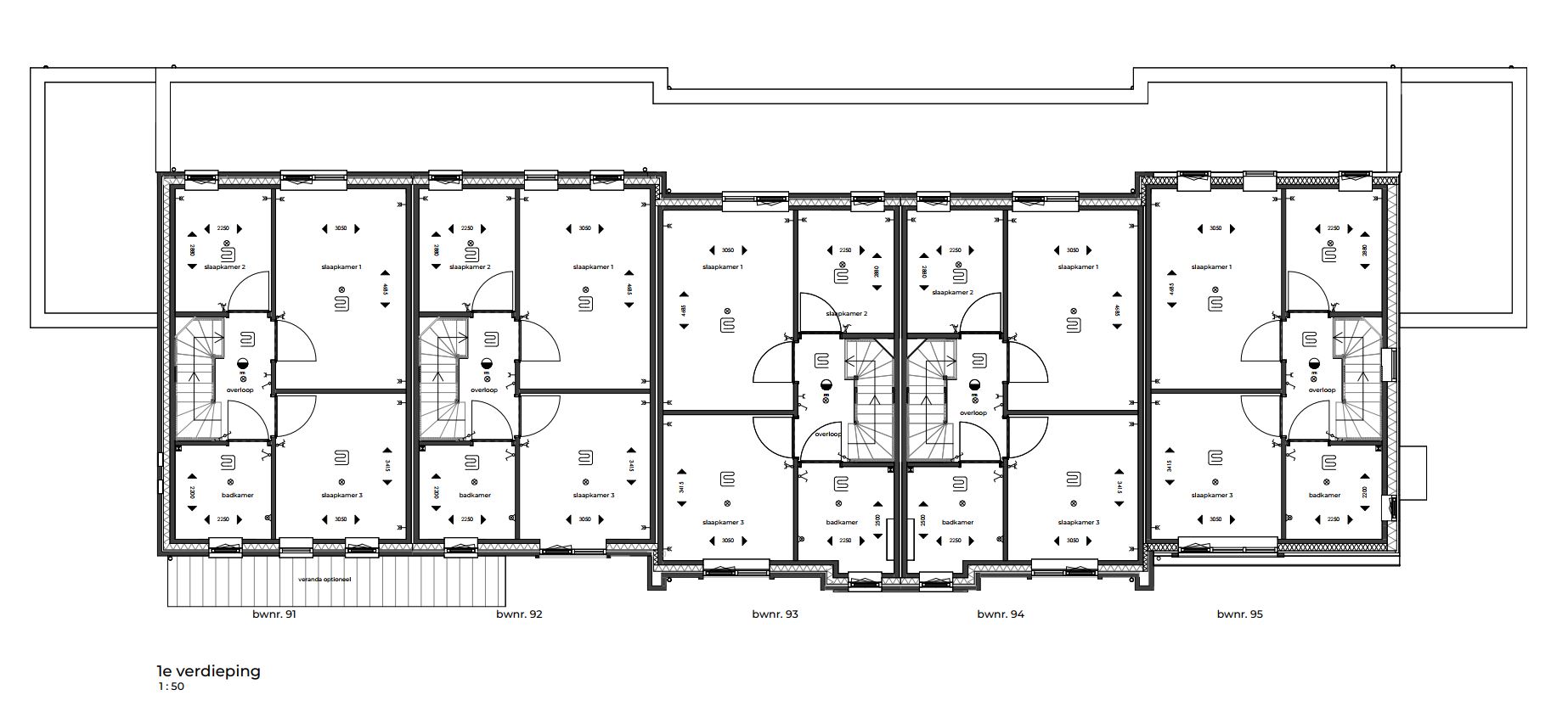
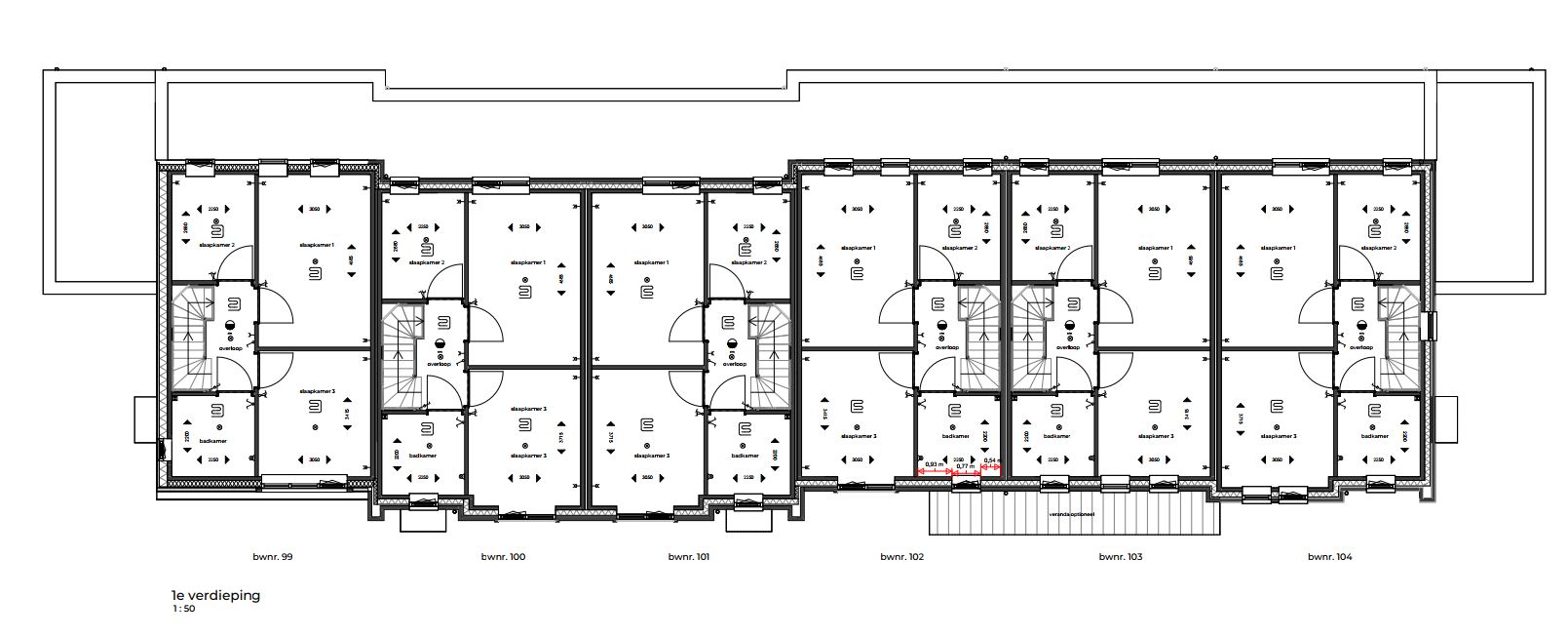
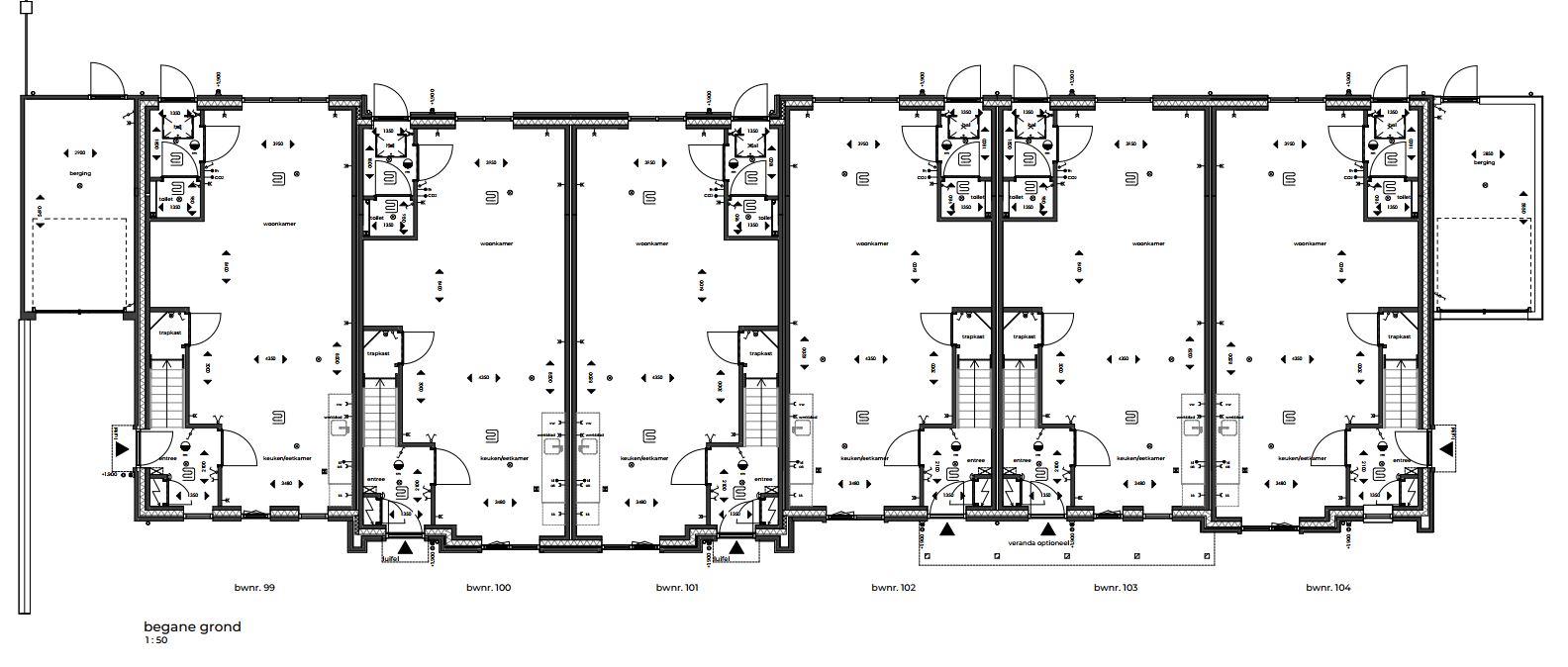
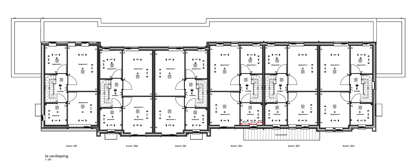
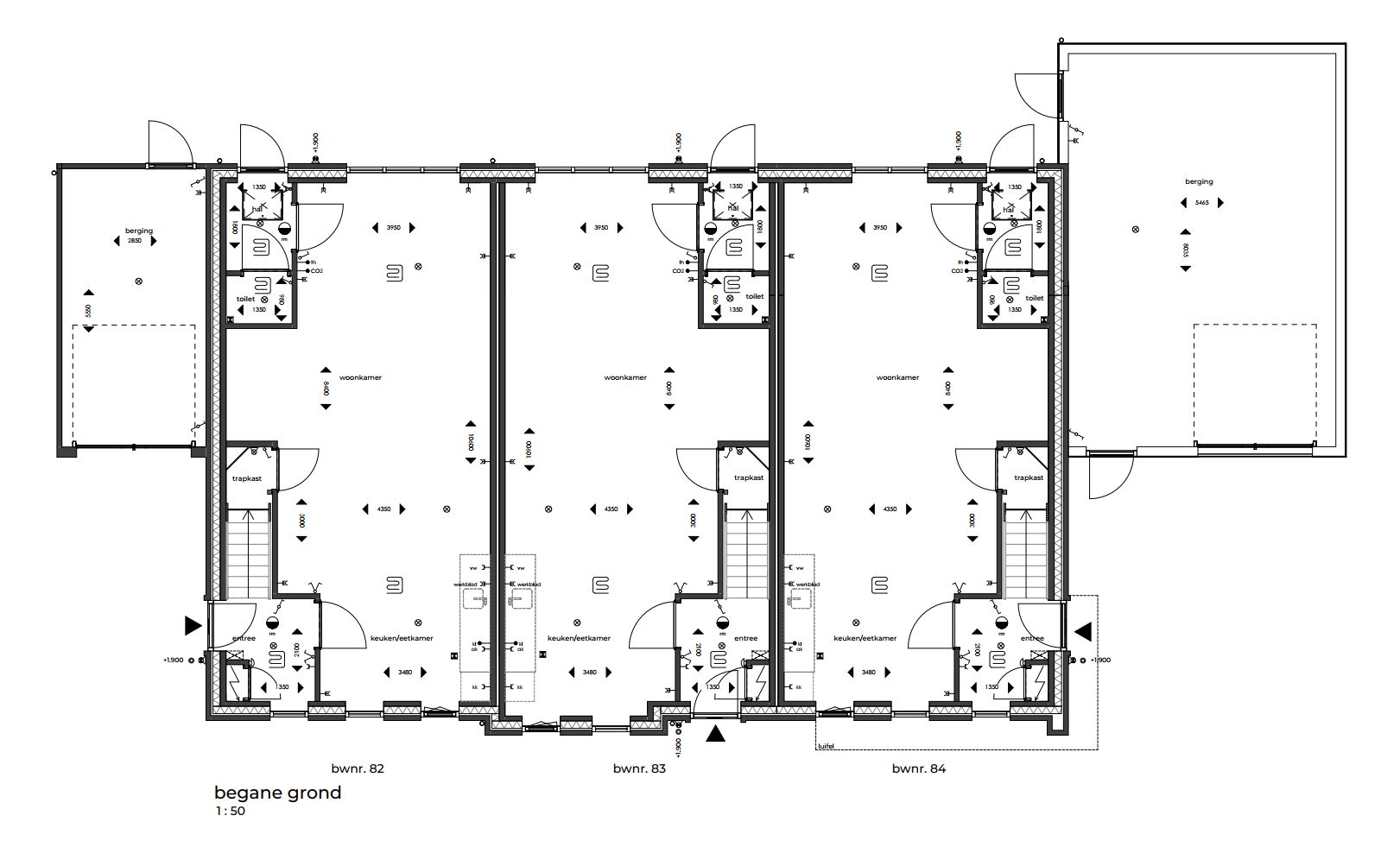
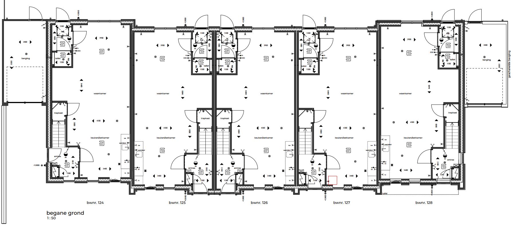
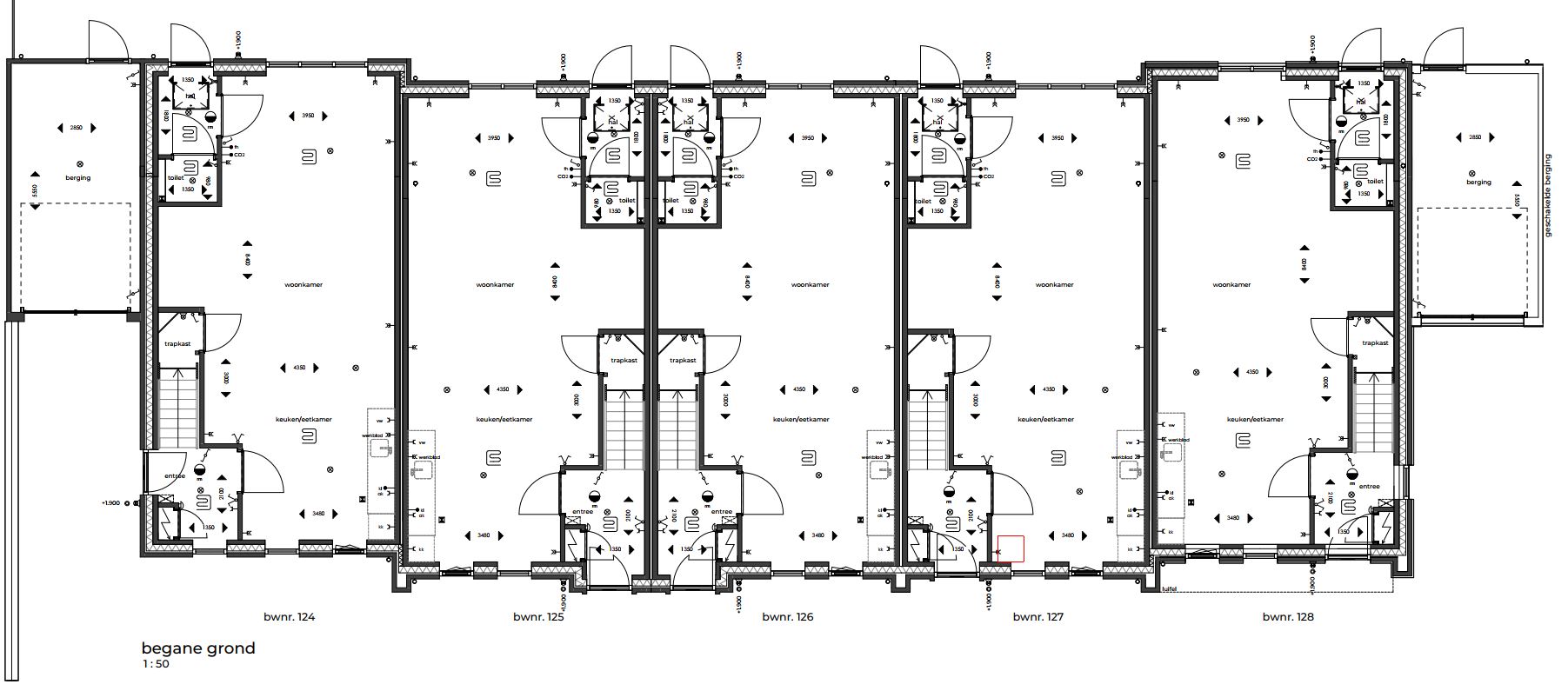
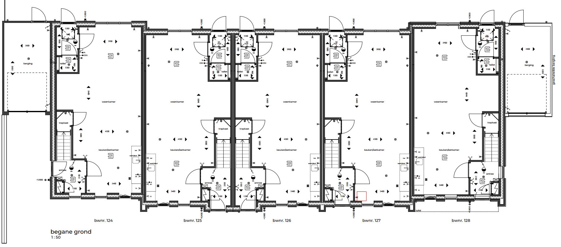
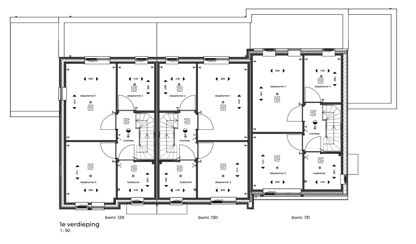
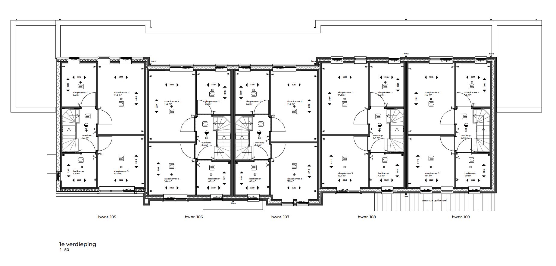
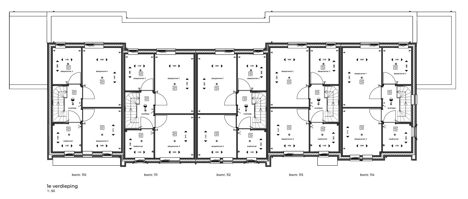
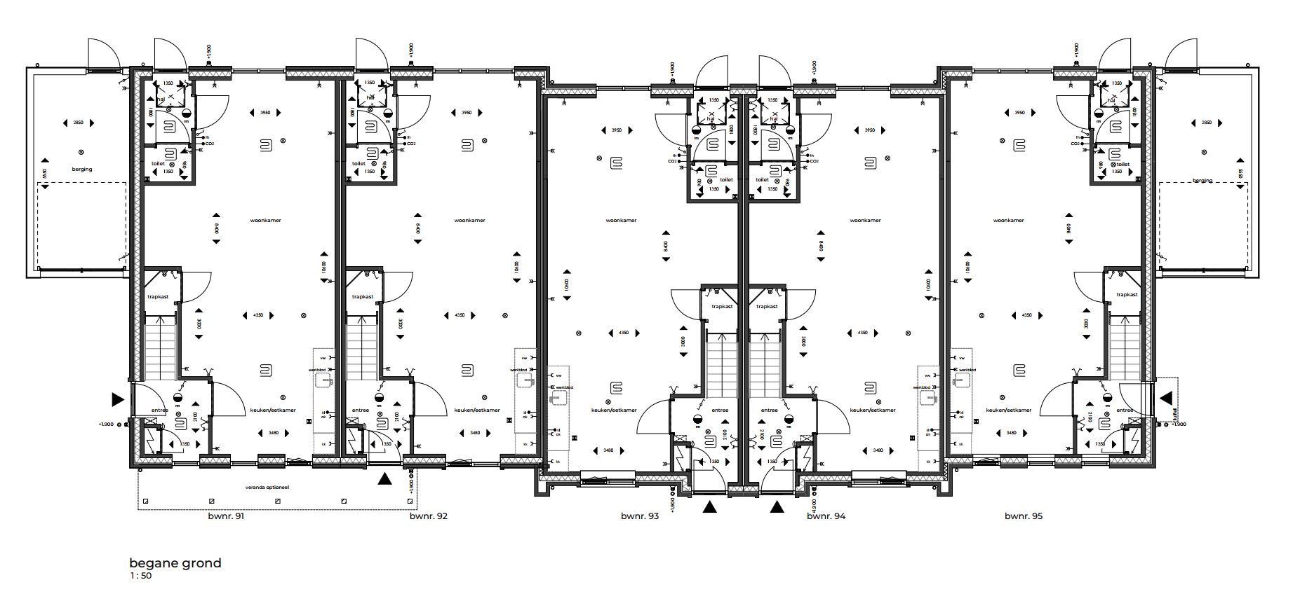
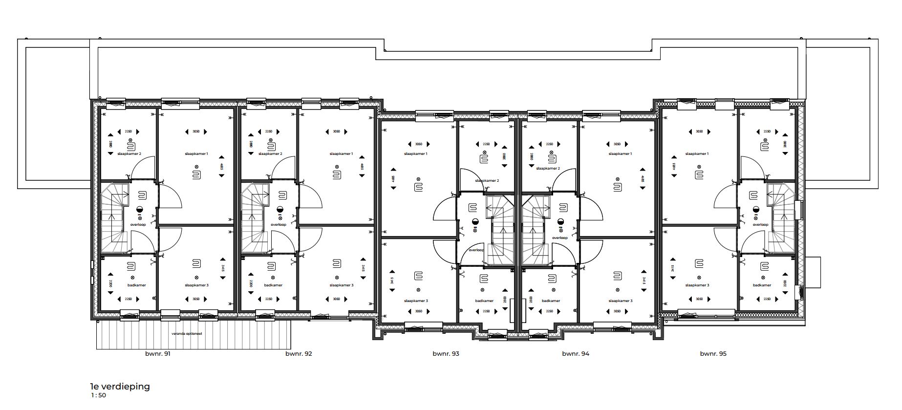
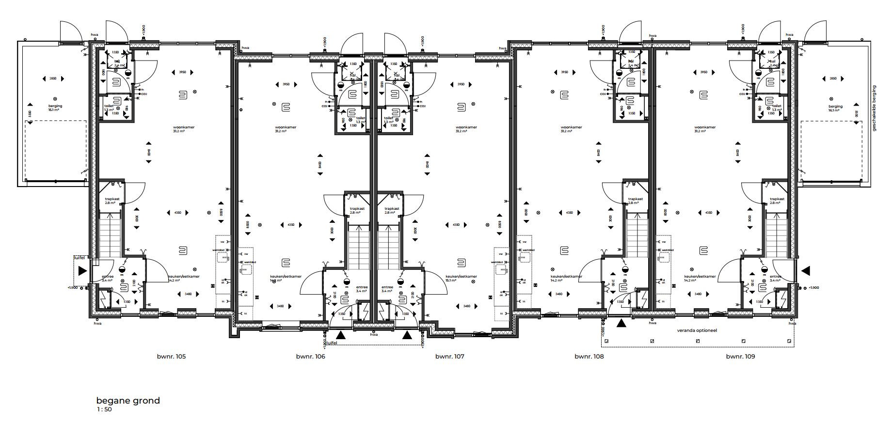
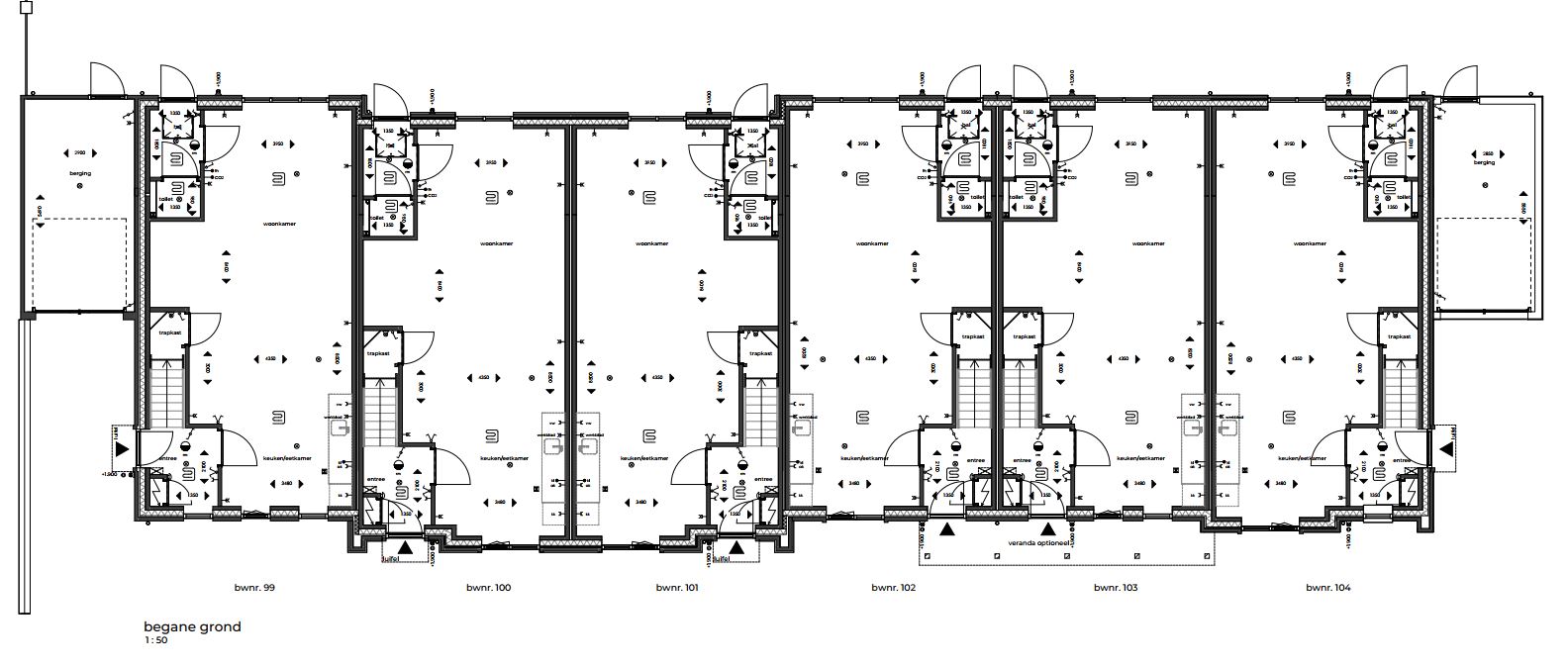
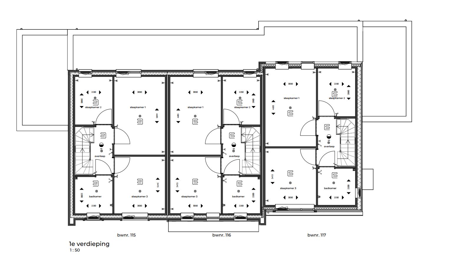
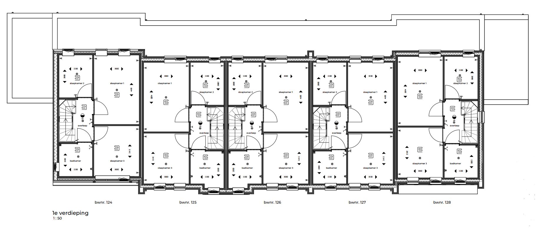
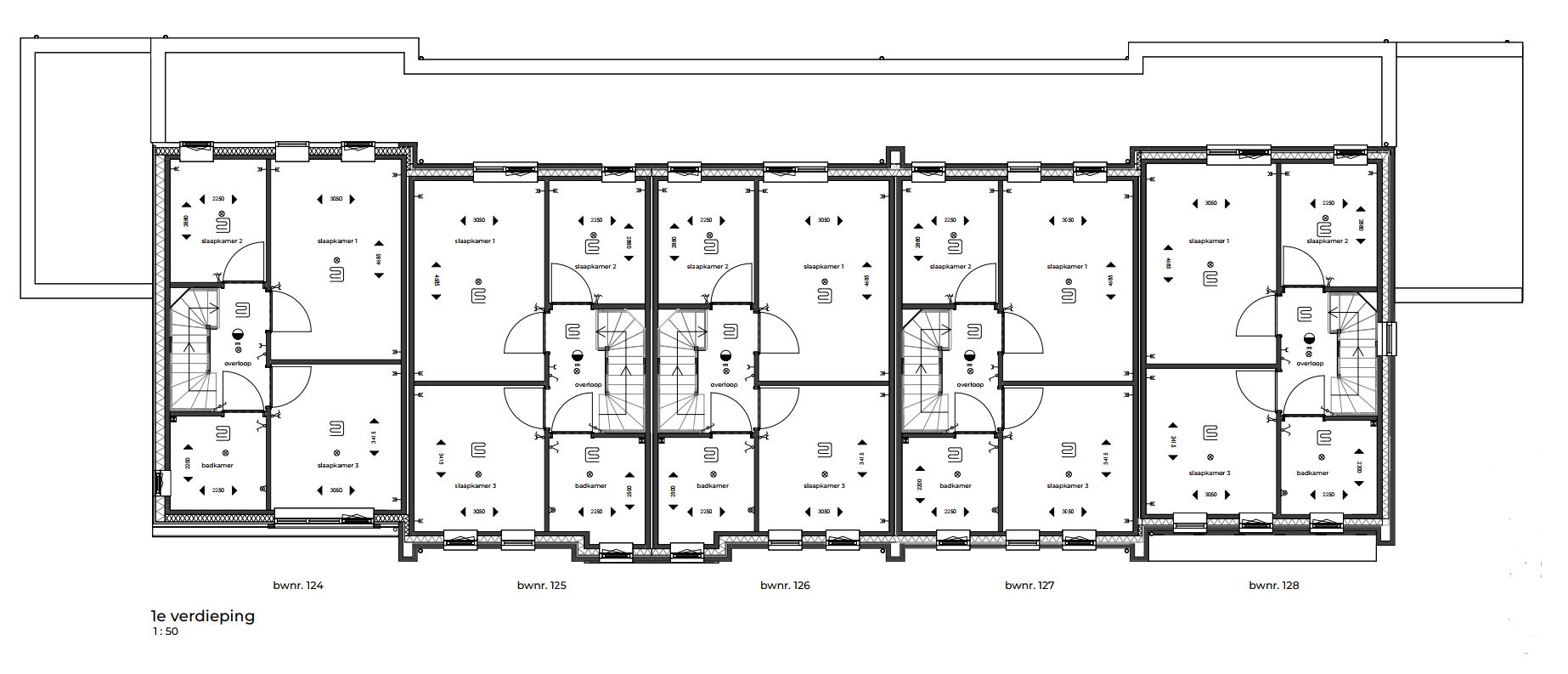
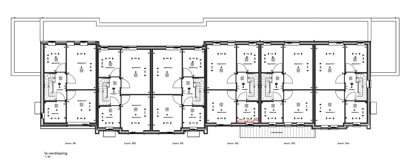
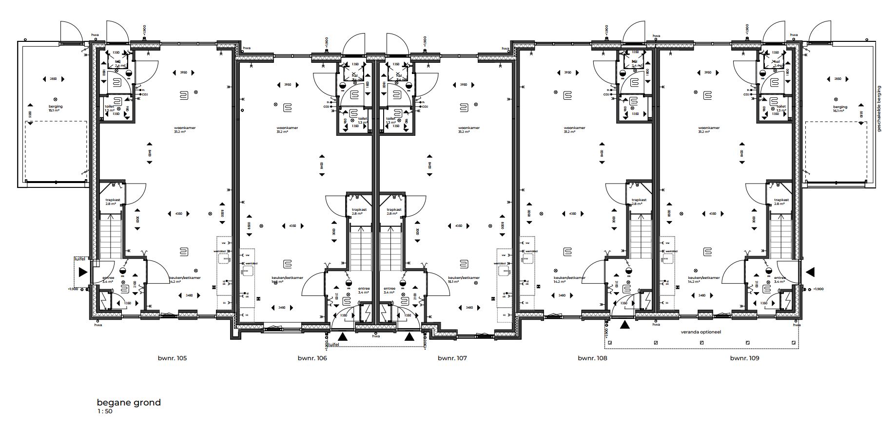
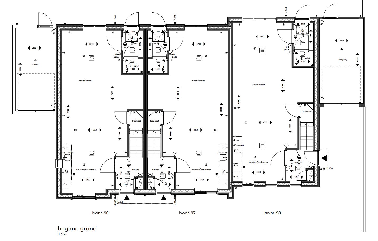
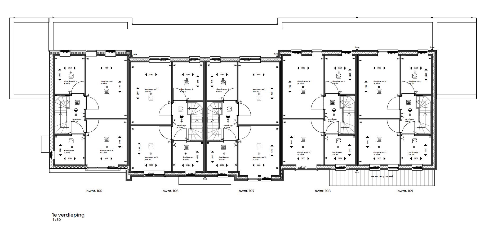
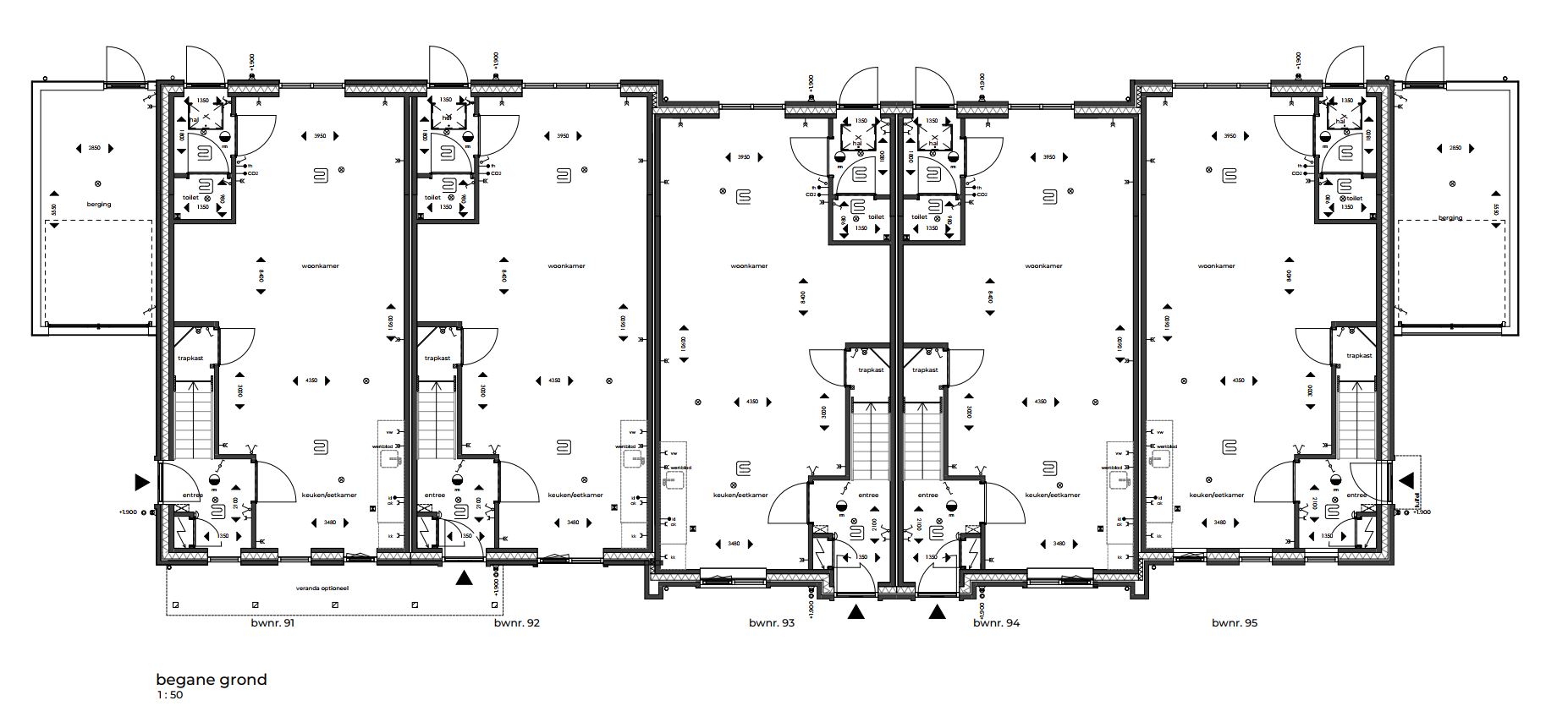
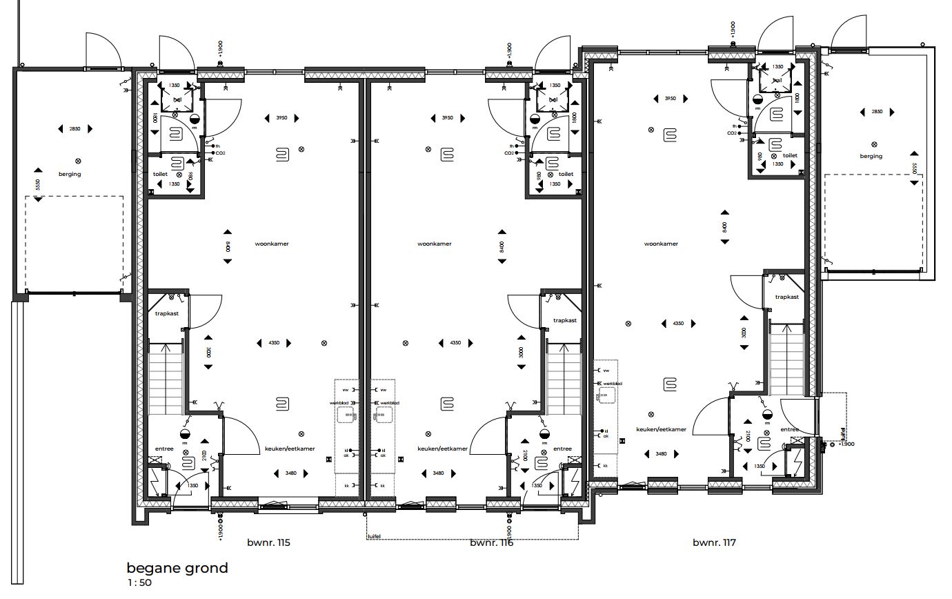
Typisch Urks: aan de achterkant zit het ‘klompenhok’ en toilet. Van daaruit kom je in de achtertuin. Neem je de trap naar boven, dan vind je daar drie slaapkamers én de badkamer met douche, wastafel en toilet.
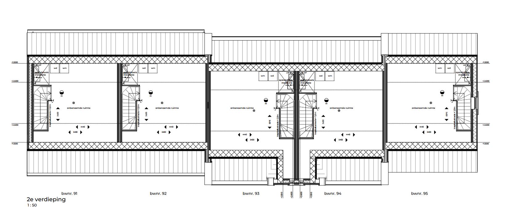
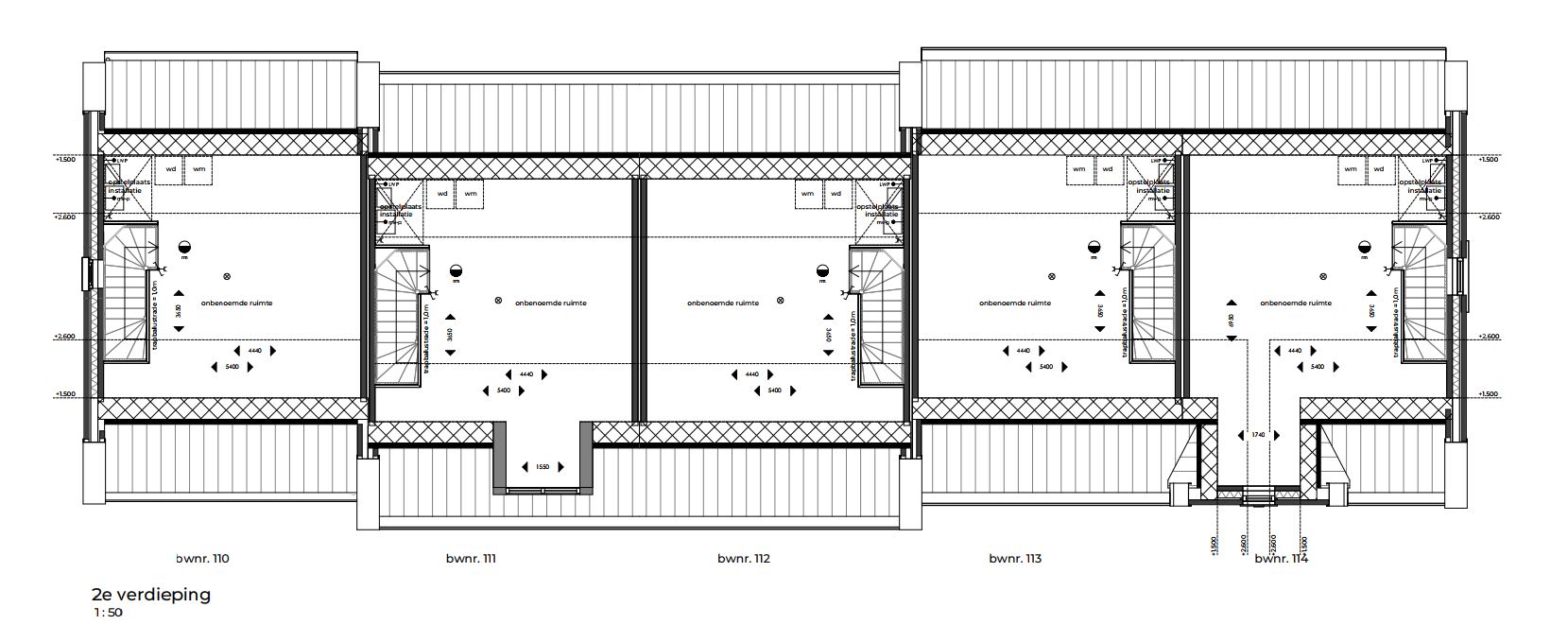
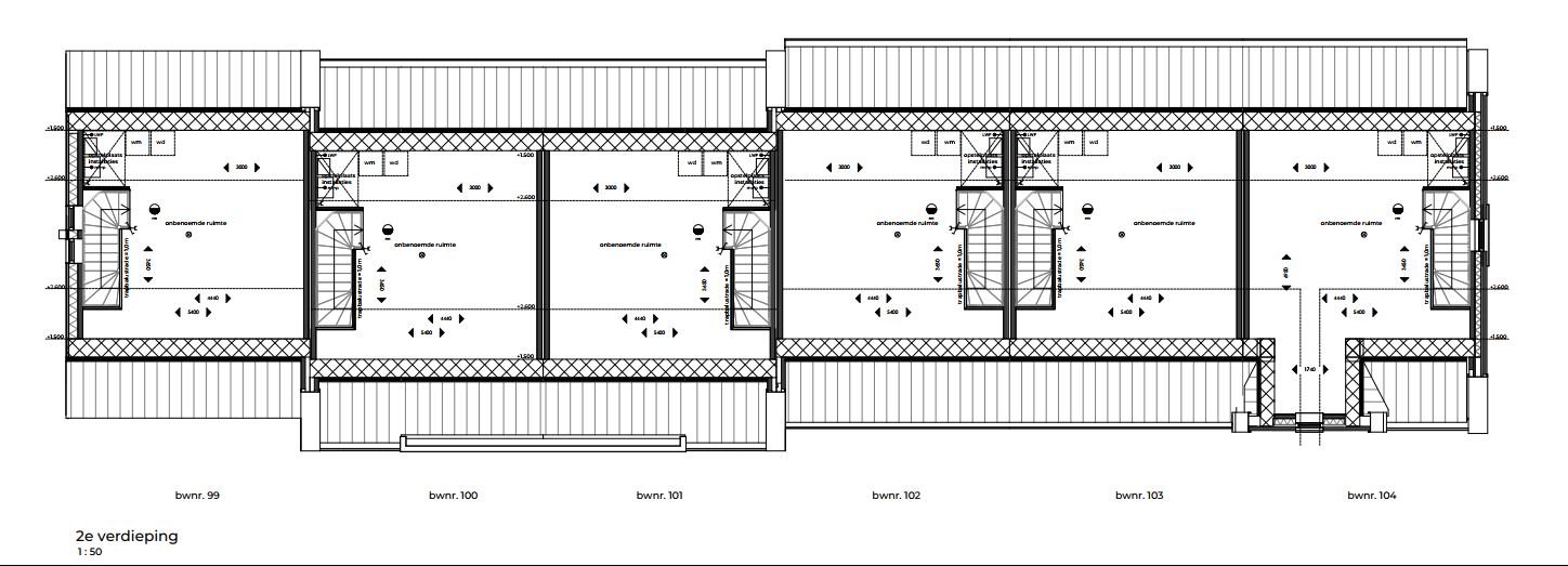
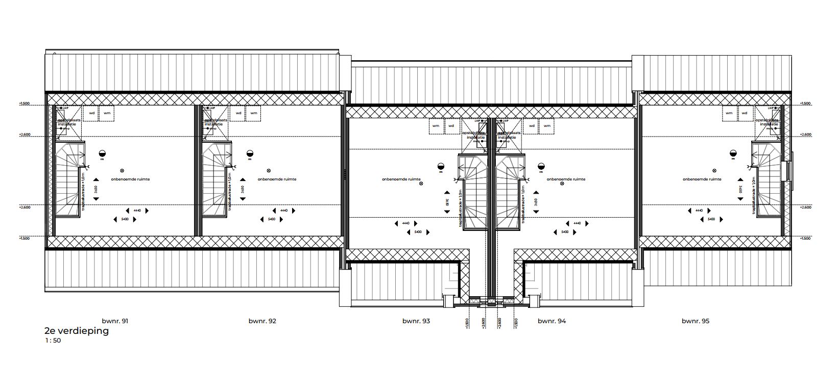
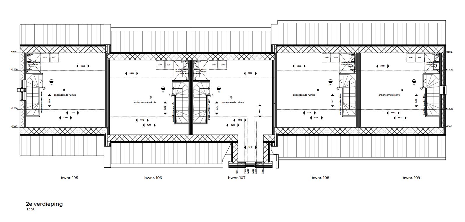
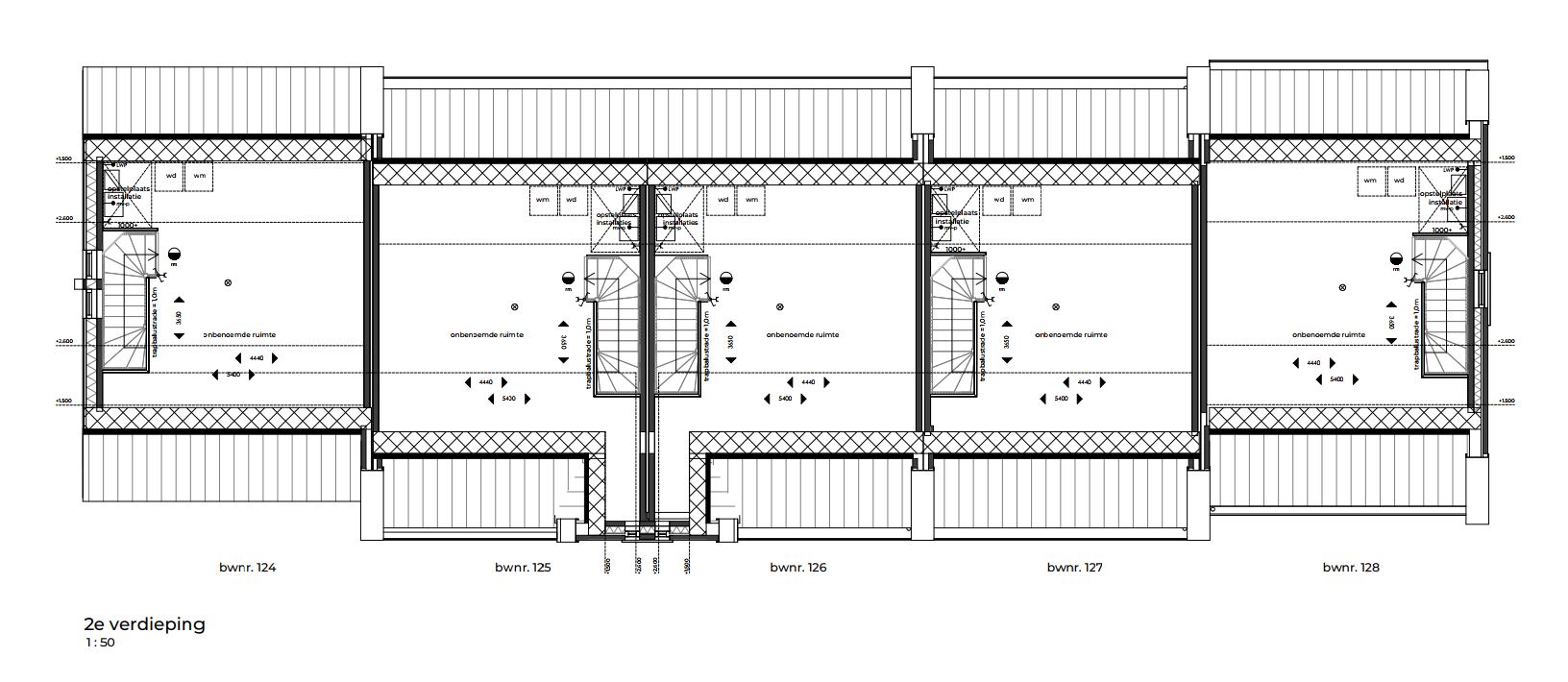
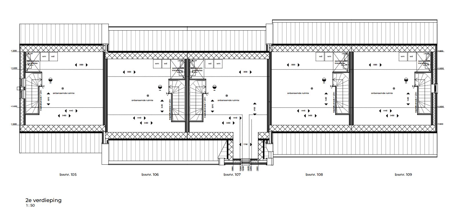
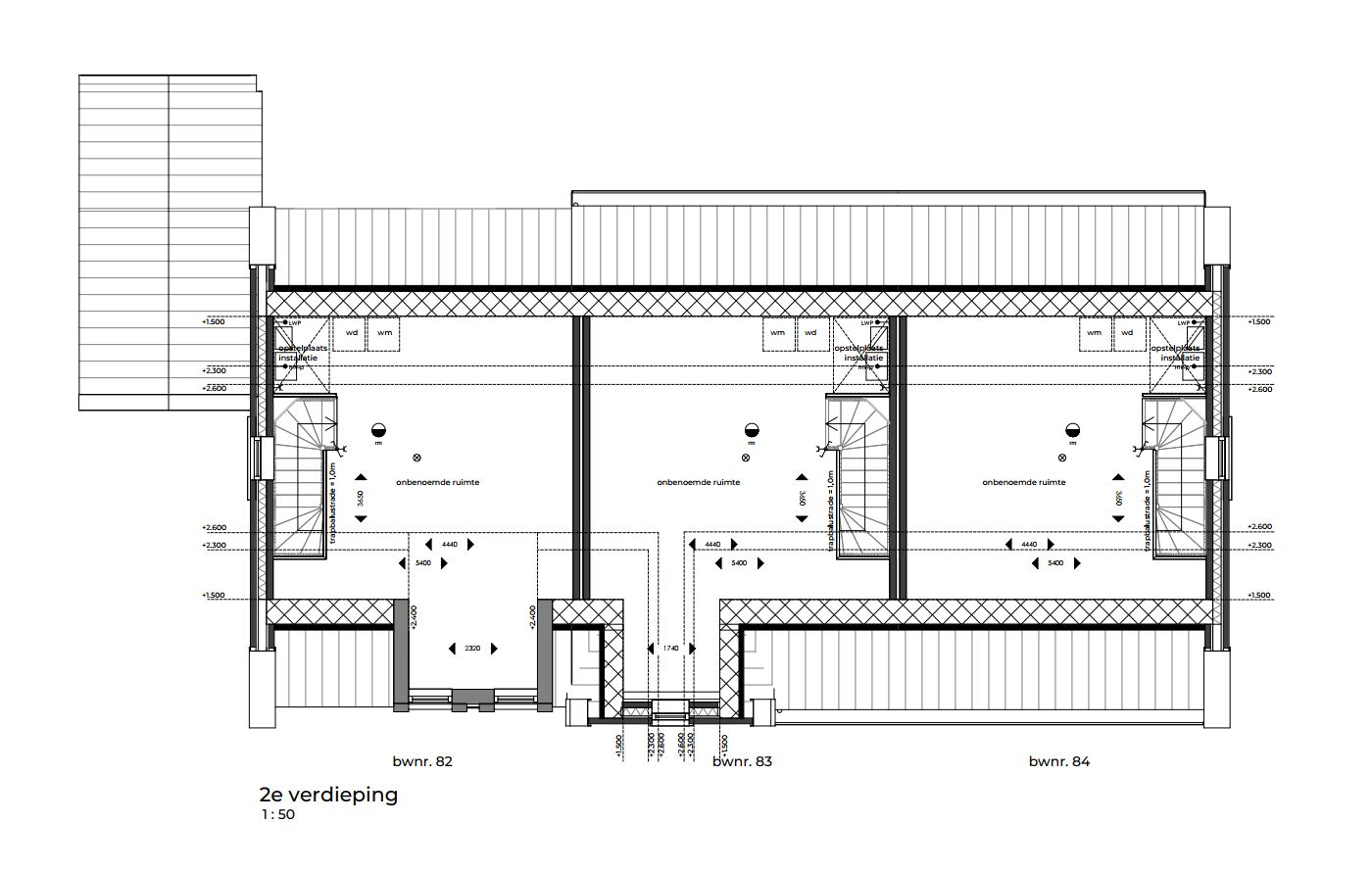
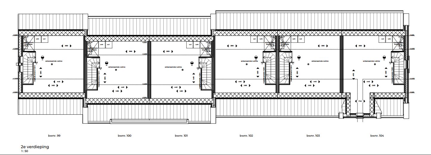
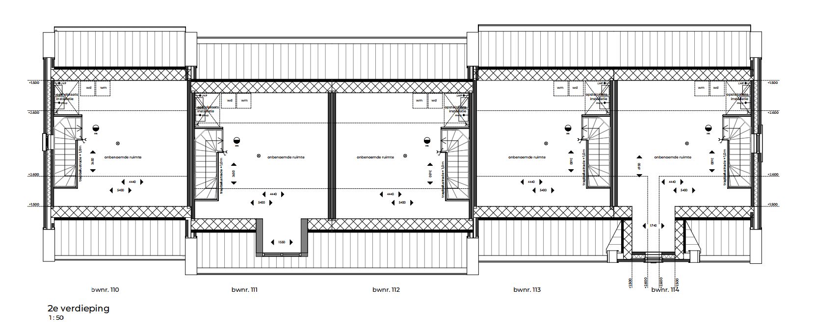
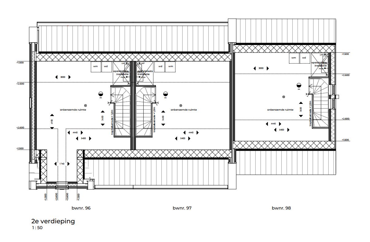
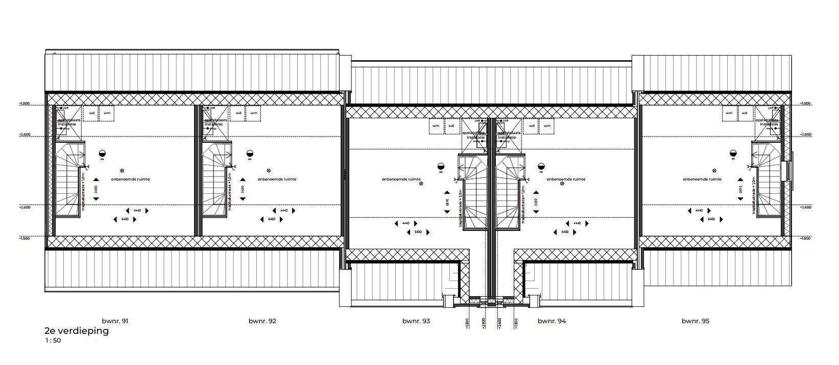
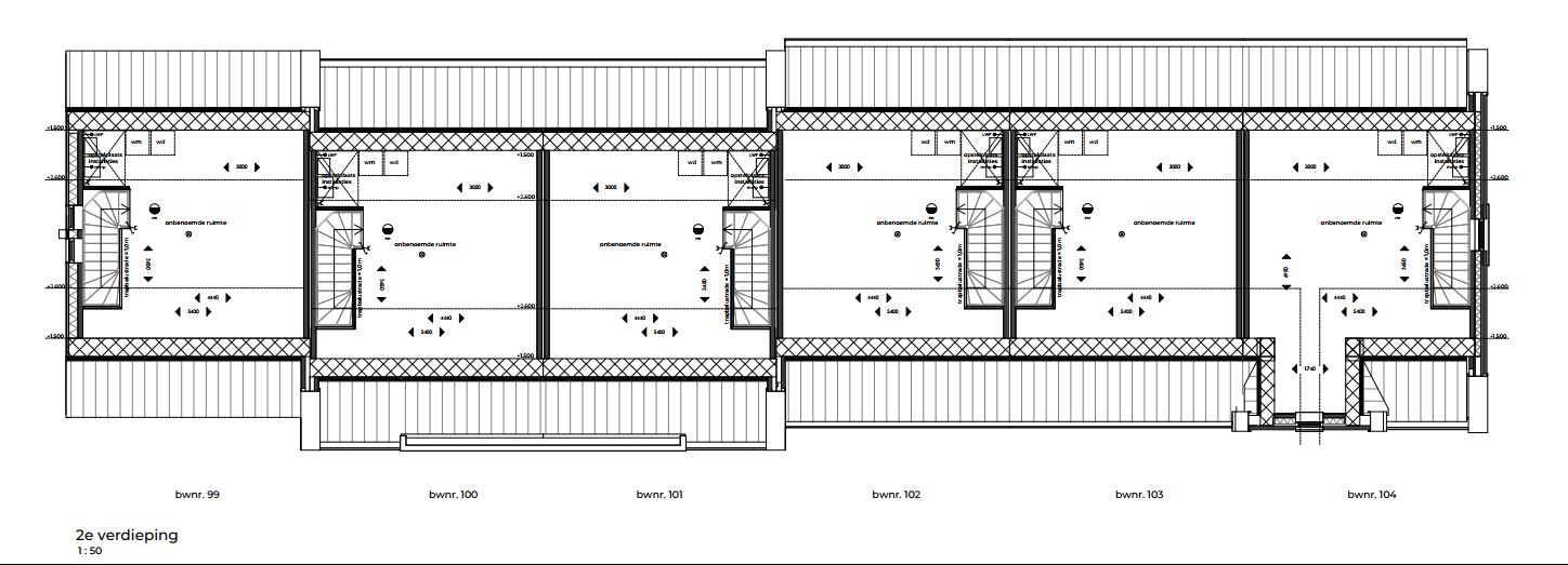
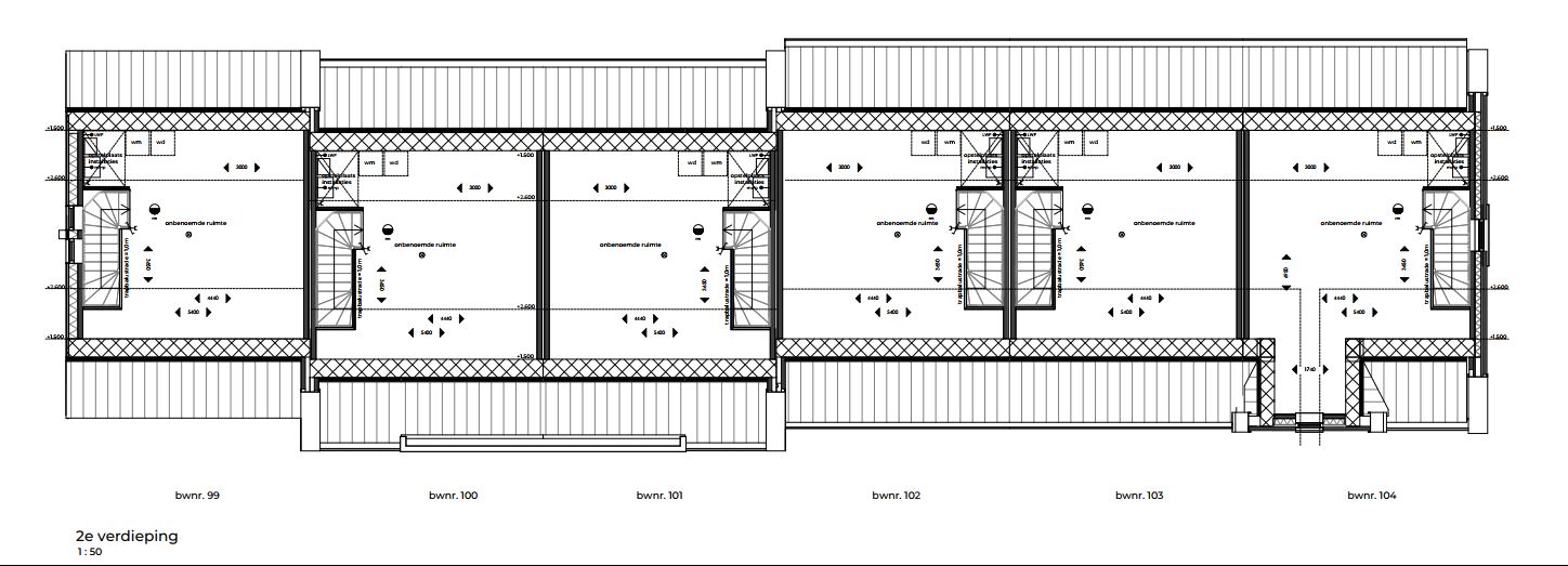
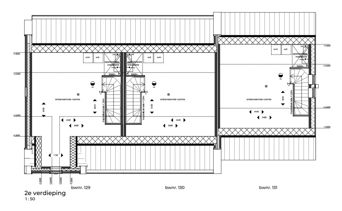
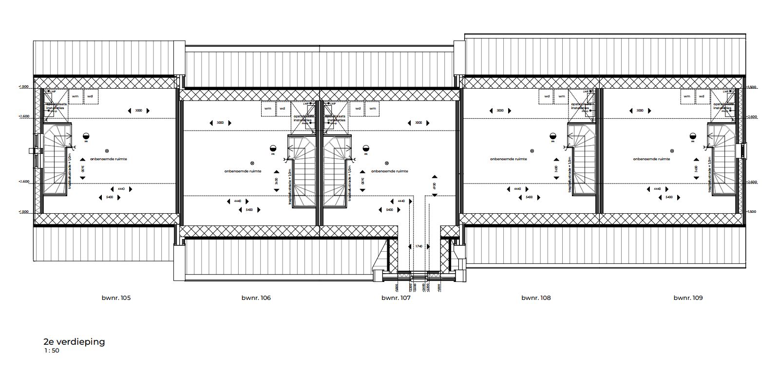
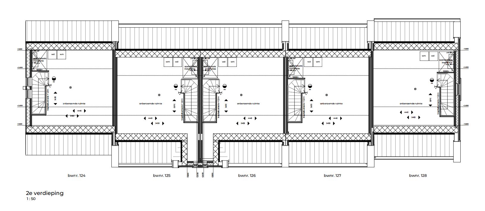
Op de zolderverdieping is ruimte voor een vierde en zelfs vijfde (slaap)kamer.
De achtertuin is een heerlijke plek. Hier is ook een handige berging. De voortuin nodigt uit om heerlijk te zitten en te ontmoeten.
Standaard inclusief een aanbouw van 2,4 m!
20 woningen
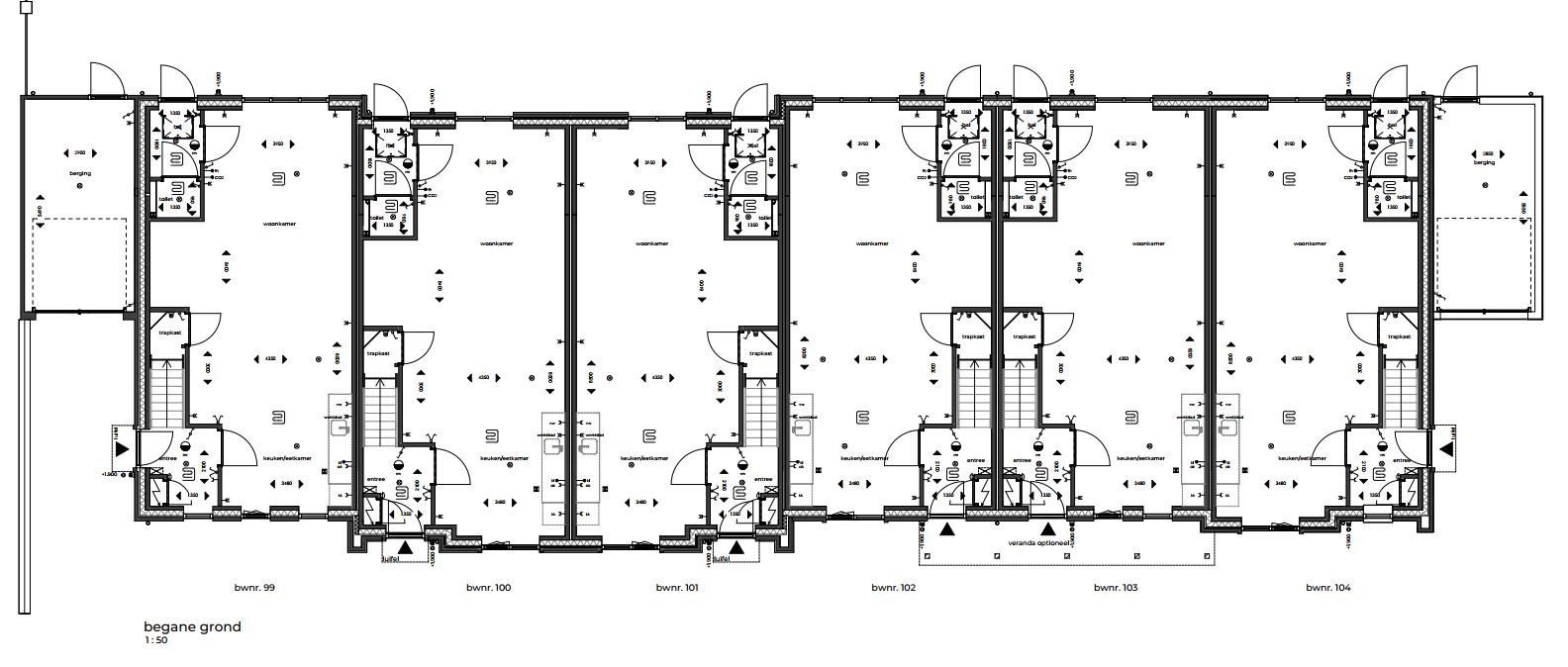
• Bouwnummers 83, 92 t/m 94, 97
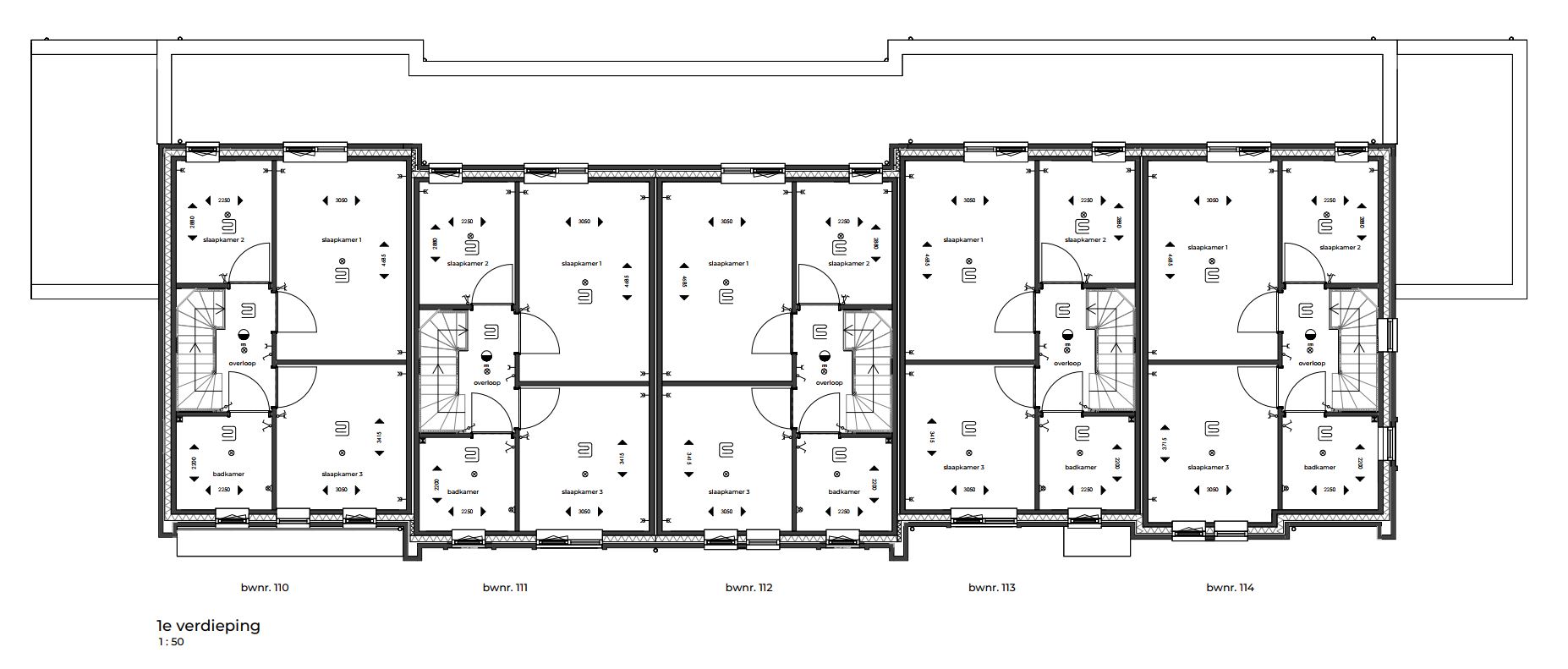
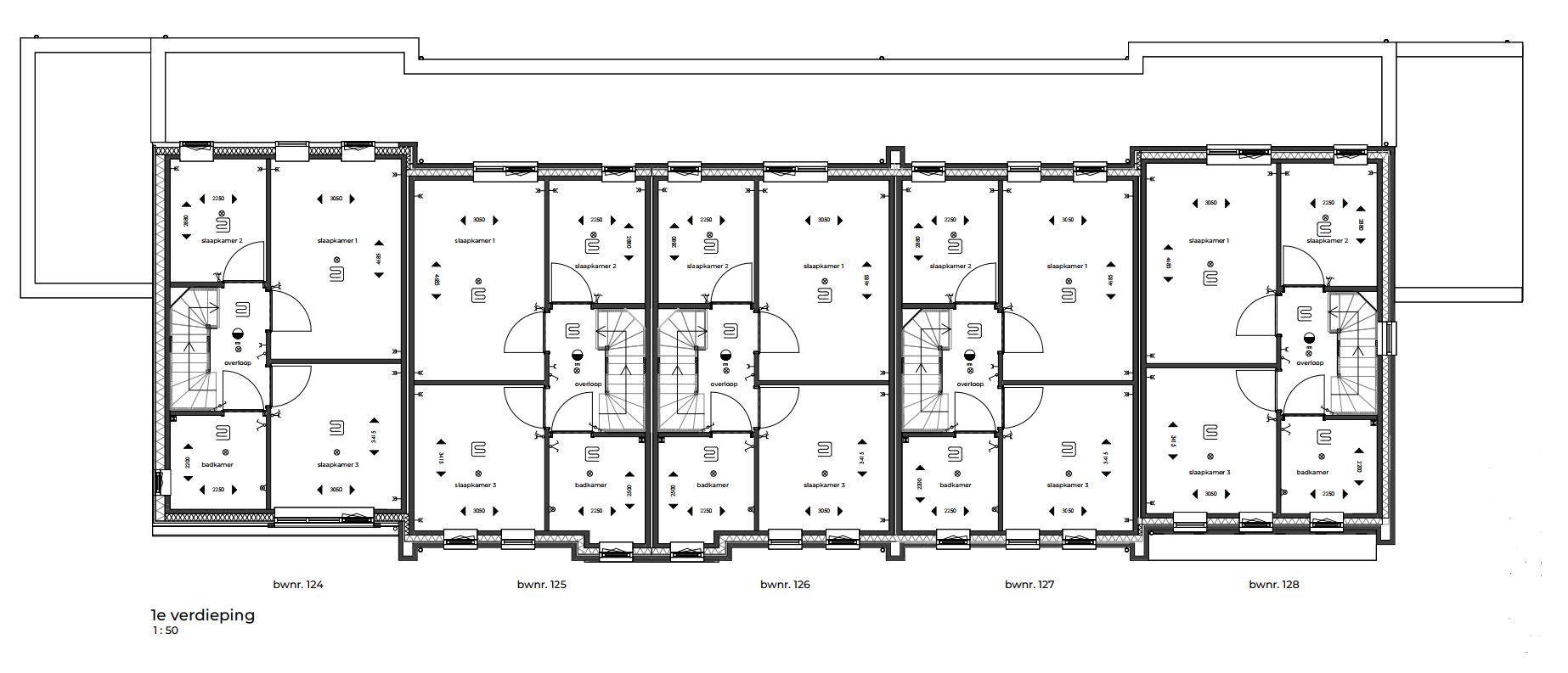
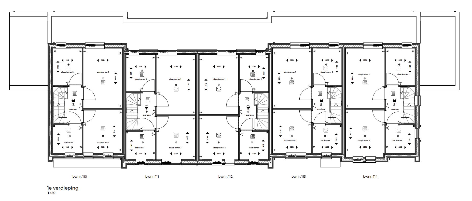
100 t/m 103, 106 t/m 108, 111 t/m 113
116, 125 t/m 127 en 130
• Woonoppervlakte van ca. 112 m2
• Beukmaat 5,7 meter
• Drie slaapkamers
• Standaard inclusief een aanbouw van 2,4 m
Situatie tussenwoningen
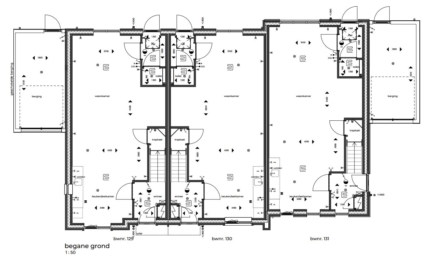
Bouwnummer 130
Gbo: 124 m2
Kavel: 142 m2
Ruimtes: 3
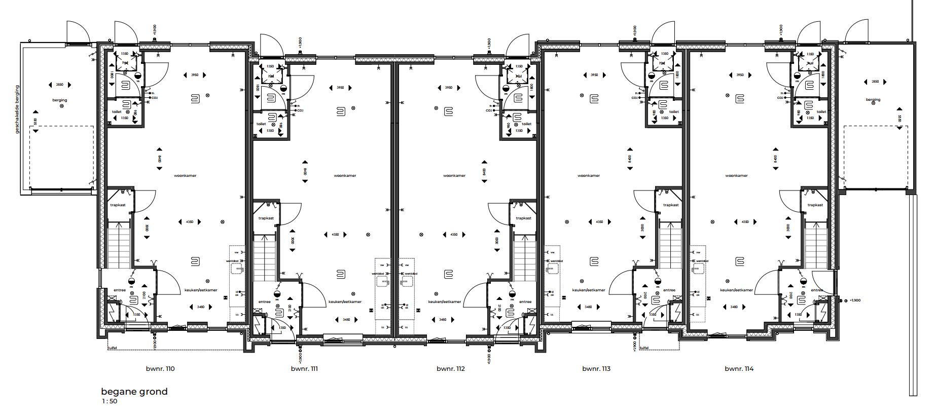
Bouwnummer 100
Gbo: 124 m2
Kavel: 136 m2
Ruimtes: 3
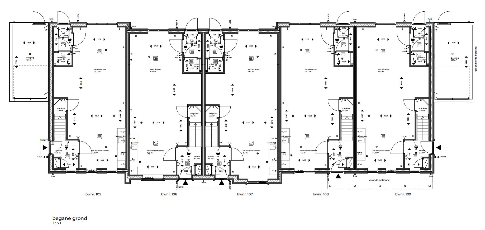
Bouwnummer 107
Gbo: 126 m2
Kavel: 142 m2
Ruimtes: 3
Bouwnummer 108
Gbo: 122 m2
Kavel: 142 m2
Ruimtes: 3
Bouwnummer 111
Gbo: 124 m2
Kavel: 143 m2
Ruimtes: 3
Bouwnummer 112
Gbo: 122 m2
Kavel: 142 m2
Ruimtes: 3
Bouwnummer 113
Gbo: 122 m2
Kavel: 143 m2
Ruimtes: 3
Bouwnummer 106
Gbo: 122 m2
Kavel: 142 m2
Ruimtes: 3
Bouwnummer 103
Gbo: 122 m2
Kavel: 137 m2
Ruimtes: 3
Bouwnummer 102
Gbo: 122 m2
Kavel: 137 m2
Ruimtes: 3
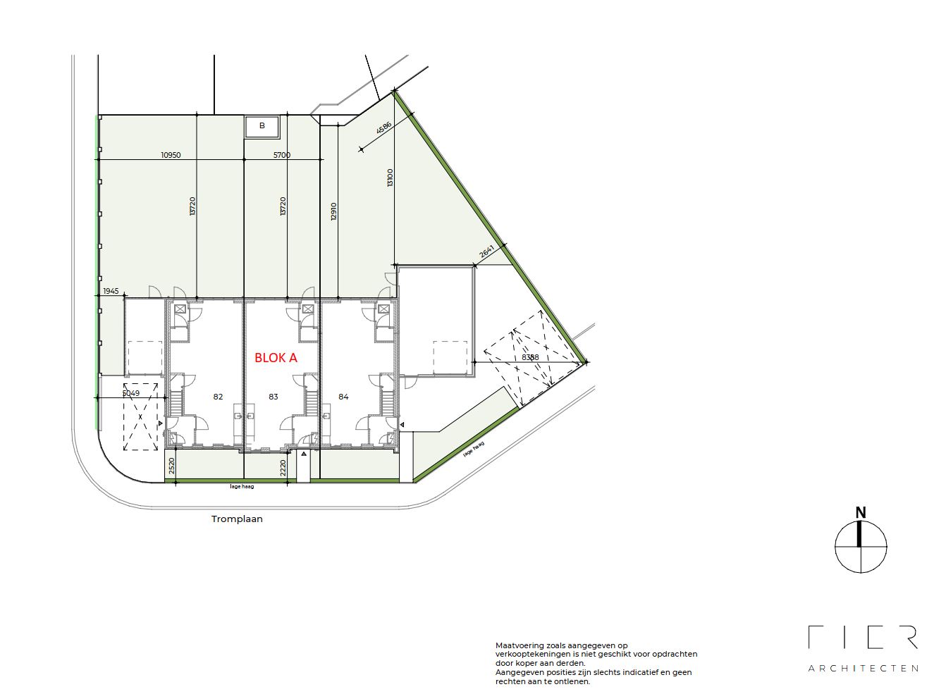
Bouwnummer 83
Gbo: 126 m2
Kavel: 157 m2
Ruimtes: 3
Bouwnummer 101
Gbo: 124 m2
Kavel: 137 m2
Ruimtes: 3
Bouwnummer 97
Gbo: 122 m2
Kavel: 148 m2
Ruimtes: 3
Bouwnummer 94
Gbo: 124 m2
Kavel: 137 m2
Ruimtes: 3
Bouwnummer 93
Gbo: 124 m2
Kavel: 137 m2
Ruimtes: 3
Bouwnummer 92
Gbo: 122 m2
Kavel: 137 m2
Ruimtes: 3
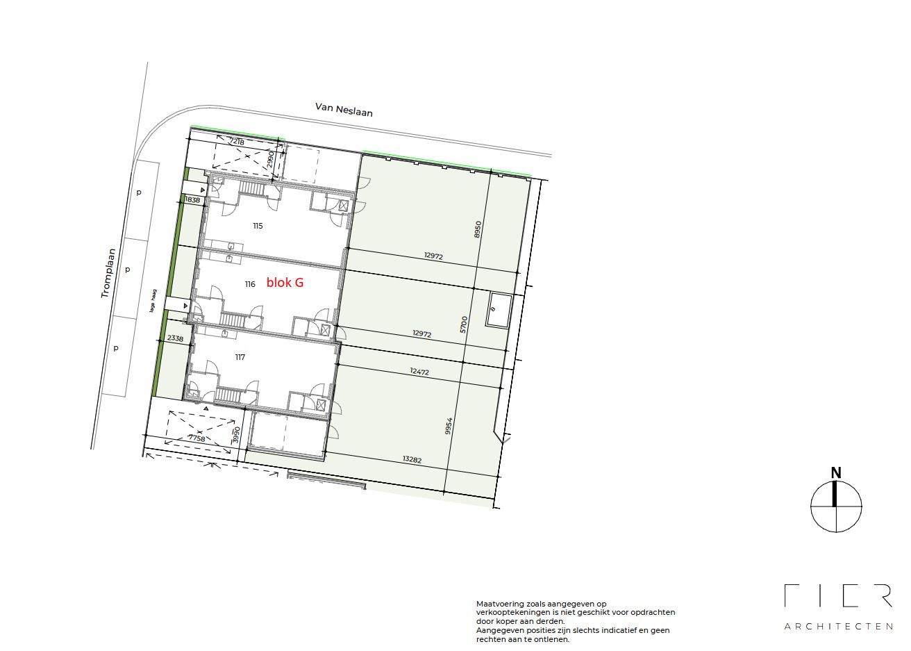
Bouwnummer 116
Gbo: 122 m2
Kavel: 154 m2
Ruimtes: 3
Bouwnummer 125
Gbo: 124 m2
Kavel: 143 m2
Ruimtes: 3
Bouwnummer 126
Gbo: 124 m2
Kavel: 143 m2
Ruimtes: 3
Bouwnummer 127
Gbo: 124 m2
Kavel: 143 m2
Ruimtes: 3
